石材的这几种安装工艺,你知道那种
作者:一个热爱装修行业的00后小姑凉
哈喽,各位朋友们大家好!
相信很多朋友对石材的安装工艺有着一知半解,那对石材的4种安装方式:干挂、湿挂、干沾,湿贴他们分别都适合用于什么情况你真的都了解吗?我们应该怎样选择施工方式呢?
快上车!接下来就由小编带你从工艺、优劣势、规范这3个方面一起去探索。
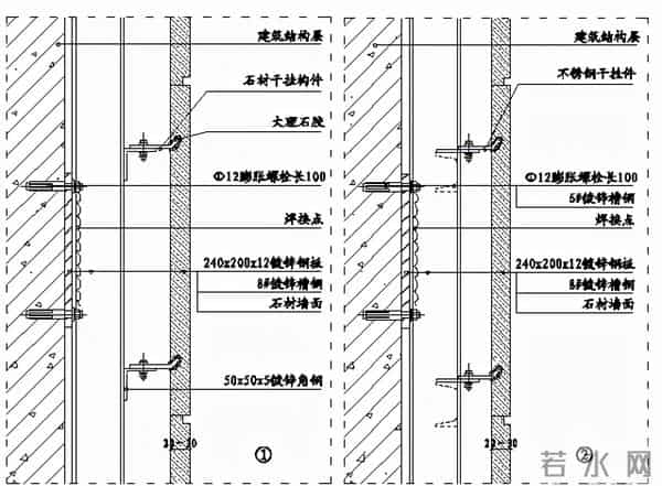
一、石材干挂法
石材干挂是我们在工作种最熟悉的一项石材安装工艺了,所谓干挂法又叫空挂法,就是通过基层骨架与墙体固定,然后用金属挂件把开槽的饰面石材挂在骨架上,不需要灌浆和披胶。
安装流程如下:
1、先做好基层处理。
2、控制放线。
3、预排石材。
4、竖向的槽钢通过镀锌钢板板,膨胀螺栓和墙体固定。
5、横向的角钢和竖向的槽钢焊接固定好。
6、将干挂件固定在横向的角钢上。
7、把开完槽的饰面石材在金属挂件上固定好,最后密封填缝,清理完毕,就可以验收啦。

图片来源于网络

图片来源于网络
优点:
1、 安全性高:因为干挂法属于物理固定不是化学固定,所以安全性更高。
2、不会返碱:整个石材都是通过钢架固定的,石材背后是架空的,所以不会出现返碱现象。
3、抗震性强:整个结构都是钢骨架在受力,抗震性也相对比较强。
4、施工:干挂法的施工不受天气影响。
缺点:
1、成本高:烧钢骨架的成本和人工都比较贵。
2、施工慢:准备事项较多,施工工艺繁琐,所以施工进度比较慢。
3、占空间:钢骨架非常占空间,至少要预留8公分的空间才能使用干挂法完成。
4、抗冲击力差:如果单块石材的面积较大,石材的背后大面积是空的,当石材收到垂直向石材表面的力的时候,石材就容易碎裂,其他的石材工艺不一样,背后没有大面积的留空,就不会出现这种情况。
什么情况下需要用到石材干挂法呢?
当石材重量大于40kg,石材单块面积超过1*1m,或室内高度大于3.5m时,墙面和柱面都应该使用干挂法。建筑的外墙维护,不承重,像幕布一样挂着,故称“幕墙”。
二、石材湿挂法
湿挂法经常可以在国标图集里见到,就是基层用水泥砂浆作为粘贴和固定材料,先把板挂号,然后往里灌水泥砂浆。
安装流程如下:
1、钢筋用铁环固定在墙体上。
2、石材背后穿孔,用钢丝或者铅丝穿过石材背后的孔。
3、将石材和墙体打横的的钢筋绑牢。
3、分批注入水泥砂浆,每隔一米高左右灌一次浆。

图片来源于网络

图片来源于网络
优点:
1、安全性高;通过挂钢丝和灌水泥浆来固定石材,是四种石材安装工艺中安全性最高最稳定的做法。
缺点:
1、施工慢:相对于其他几种施工工艺来说,湿挂法的施工比较慢,3米的高度就要浇筑3次,每次浇筑至少需要养护24个小时,工期长。
2、成本高:石材打孔和绑铁丝、墙面固定都需要人工费,所以成本比较高。
3、容易空鼓、返碱。
4、通过灌水泥浆来固定石材,容易出现空鼓的情况,而且使用水泥砂浆作为固定和粘贴石材的材料容易出现返碱的现象。
什么情况下需要用到湿挂法?
这种做法经常在教科书或者标准图集上看到,室内石材安装很少用到,建筑外墙维护用的比较多。
三、石材干贴法
在基层不能沾水的情况下只能使用干沾法,这种形式在小面积空间用的最多,只要基层做平整就行。

图片来源于网络

图片来源于网络
优点:
1、施工快:施工工艺较为简单,所以工期较短。
2、不返碱:相对于用水泥砂浆。
3、不易空鼓:结构胶的附着力很强,不易空鼓。
4、不占空间。
缺点:
1、施工难度大:由于干贴法的技术含量较高,所以施工难度较大。
2、成本高:相对于湿贴法来说干贴法的成本要高得多。
3、安装要求:干沾法对空间的高度也是有要求的,要求空间高度小于3.5米才可以使用。
什么情况下需要用到干贴法?
小面积的墙面和需要用到石材或瓷砖修饰的固定家具面上。
四、石材湿贴法
湿贴法通过抹灰层找平,再用水泥砂浆或胶泥作为粘接剂,把石材贴在抹灰层上固定好。,从工艺上来说并没有太大的区别,其好坏取决于对胶粘剂材料的选择。大多数实际施工项目都是以胶泥作为粘接材料,胶泥较为牢固,强度更高,完成面更薄。

图片来源于网络

优点:
1、适用范围广:无论是贴石材还是瓷砖,或者马赛克,都是可以用湿贴法。
2、工期短:施工快。
3、成本低。
4、不占空间,完成面薄。
缺点:
1、易空鼓、返碱。
2、对温度的适应能力较差。
湿贴法的使用范围比前三种更为广泛,成本也较低。
综上所说的就是这四种施工方式的基本流程和优缺点,喜欢的朋友可以给小编点点关注,小编将继续在平台分享一些装修知识和建材好物。希望能够帮到您,谢谢您的观看!
本文标题:石材的这几种安装工艺,你知道那种
本文链接:http://www.hniuzsjy.cn/xuexi/53472.html
声明:本站所有文章资源内容,如无特殊说明或标注,均为采集网络资源。如若本站内容侵犯了原著者的合法权益,可联系本站删除。
